From the Series
Tragedy can strike in an instant. Just over six months ago, a massive earthquake struck Nepal killing 9 000 people and injuring 23 000 more. Those left standing were forced to contend with crippled infrastructure and homelessness. But, Italian architectural firm Barberio Colella ARC believes it can help rebuild the lives of the victims just as fast as the earthquake destroyed it. Its modular home design, called Just A Minute Shelter, can be deployed immediately and aims to provide an adequate living space for those affected by the crisis.
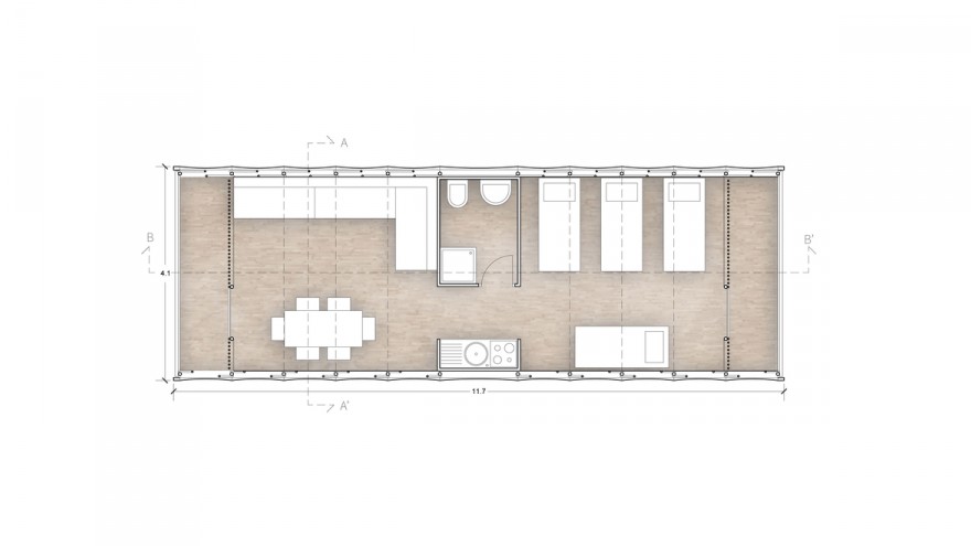
The proposed shelter would be made from locally sourced materials. It is an easily expandable, foldout structure that is also easy to transport. At 4 x 7.11 meters, the shelter is big enough to house 10 people once erected. But, once folded for transport the structure shrinks to 2.5 x 4 meters.
According to the firm, the structure is made of bamboo and textile building envelope and arrives on site fully assembled, meaning no skilled persons are required to set it up.
The home unfolds like an accordion and at its centre is a permanent section equipped with essential components such as a bathroom and a kitchen. The home is also energy self-sufficient through its Mono-pitched roof, which allows the user to easily install the solar and photovoltaic panels.
“The idea is to use these housing units by aggregating them with each other to form double or quadruple houses, small villages, and so on, in order to facilitate the life of the community after the tragedy of the earthquake,” write the architects.
Unfortunately, six months after the tragedy, the homes are not yet being manufactured. But with on-going strife in the region and the current refugee crisis in Europe there is hope that the home will be fast-tracked to distribution soon.







